¶¦²©

1
²úÆ·½â¾ö¼Æ»®
products
¶¦²©¡¤(ÖйúÓÎ)ÓÐÏÞ¹«Ë¾¹ÙÍø
ÄúÏÖÔÚµÄλÖãºÊ×Ò³ - ²úƷϵÁÐ - Ļǽ²úƷϵÁÐ
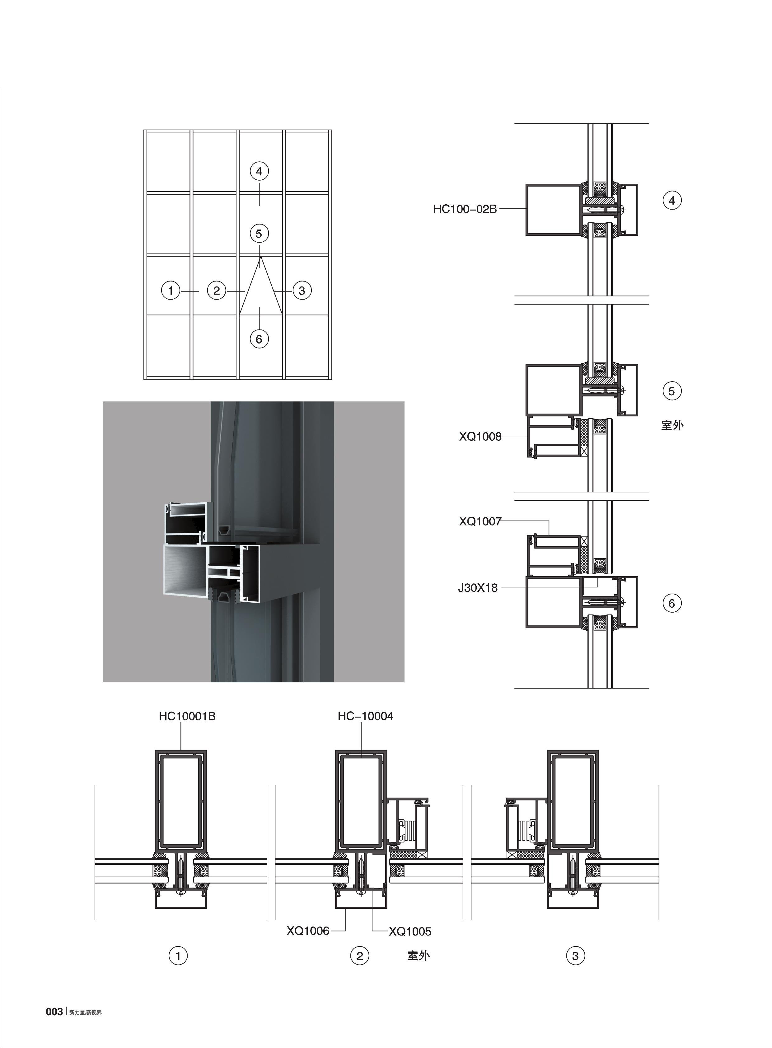
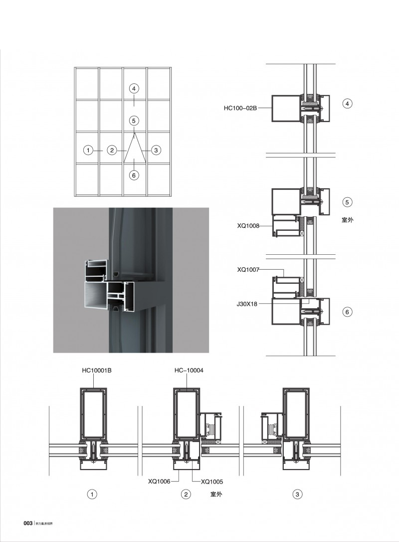
55¡¢60¡¢70¡¢100ϵÁе¥²£Ã÷¿òĻǽ(50¿í)
¶¦²©¡¤(ÖйúÓÎ)ÓÐÏÞ¹«Ë¾¹ÙÍø

¶¦²©ÂÁÒµ¹«ÖÚºÅ

¡¾ÍøÕ¾µØÍ¼¡¿¡¾sitemap¡¿